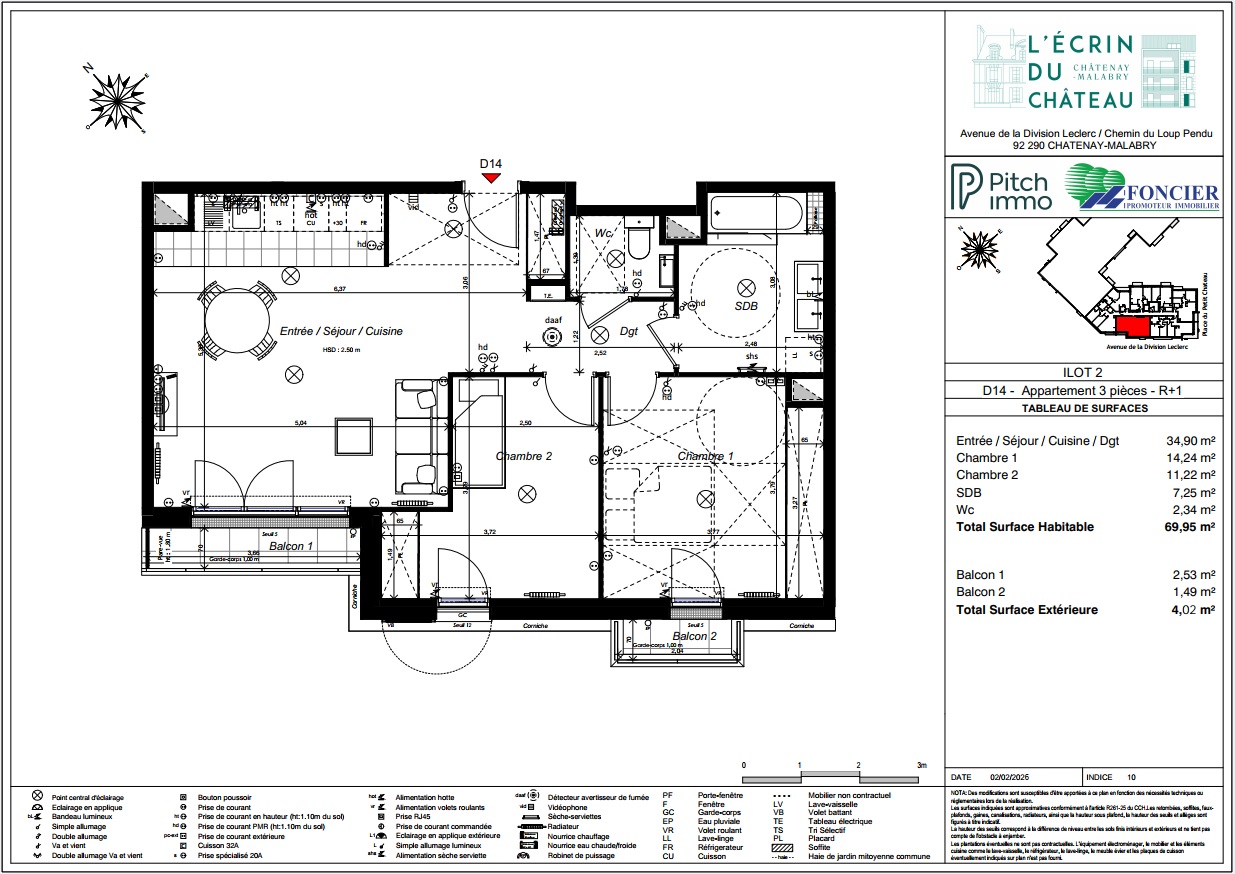
Dans une résidence neuve livrée en 2026,
Au pied de la station Malabry du Tram T10, à proximité immédiate du Château de Malabry, de commerces, d’une école primaire et d’une école maternelle, au 1er étage, un appartement de type T3 comprenant, une entrée avec placard un bel espace entrée-séjour-cuisine-dégagement de 34.90 m² exposé sud-ouest et donnant sur un premier balcon, deux grandes chambres avec placard dont l’une donnant sur un second balcon, une salle de bain avec double vasque et attente de lave-linge et un WC séparé avec lave-mains. La production d’eau chaude et de chauffage est collective et le bâtiment est raccordé à la fibre optique. Un ascenseur et un local vélo viennent compléter cette offre.
Possibilité de parking couvert (+ 50.00€/mois).
