Dans une résidence neuve livrée en 2026,
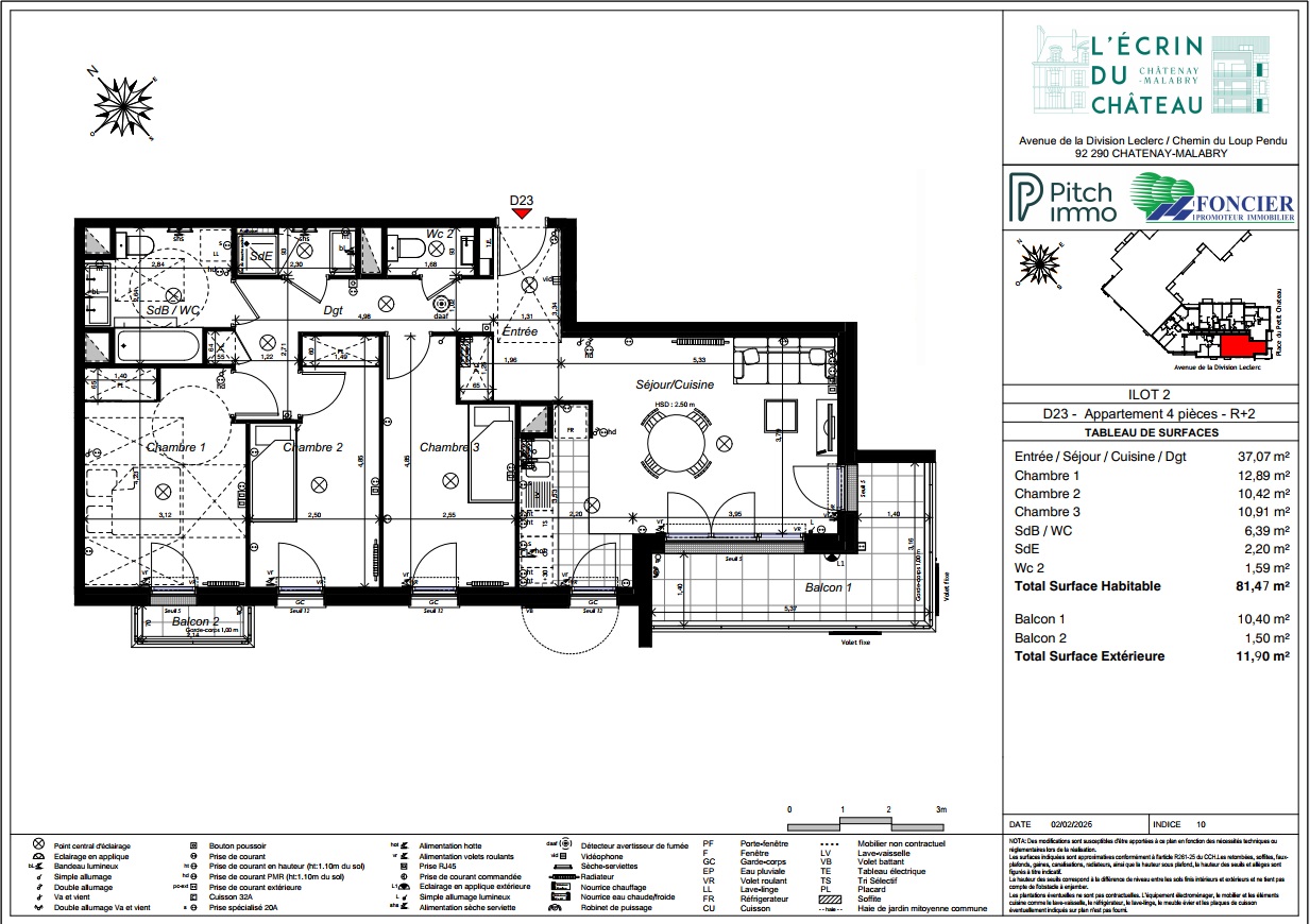
Au pied de la station Malabry du Tram T10, à proximité immédiate du Château de Malabry, de commerces, d’une école primaire et d’une école maternelle, au 2ème étage, un appartement de type T4 comprenant, un bel espace entrée-séjour-cuisine-dégagement de 37.07 m² exposé sud et donnant sur un premier balcon de 10.40 m², trois chambres dont l’une donnant sur un second balcon, une salle de bain avec WC, une salle d’eau et un WC séparé. La production d’eau chaude et de chauffage est collective et le bâtiment est raccordé à la fibre optique. Un ascenseur et un local vélo viennent compléter cette offre.
Possibilité de parking couvert (+ 50.00€/mois).
